Главная
Проекты
Деревянные дома до 200 кв. м.
Деревянные дома от 200 до 250 кв. м.
Деревянные дома от 250 до 350 кв. м.
Деревянные дома от 350 кв. м.
Деревянные бани
Фотогалерея
Фотогалерея
Стоимость
Обо мне
Контакты
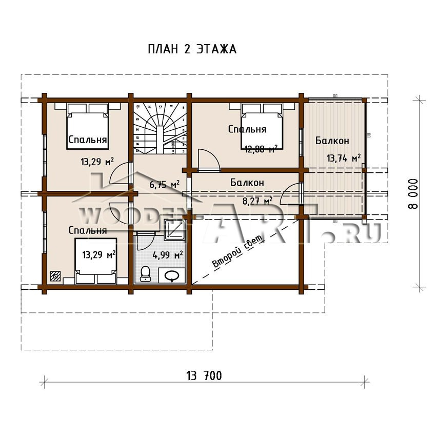
«Дракино» 214 кв. м.
Расчётная площадь: 213,54 кв. м.
Общая площадь: 175,88 кв. м.
Площадь помещений: 137,43 кв. м.
Материал: клееный брус
Размеры дома: 9,7мх 13,7 м
Высота 1 этажа (до усадки): 2,7 м
Кухня-гостиная: 35,69 кв. м.
Спальн: 4шт
Второй свет: есть