

- Расчетная площадь: 208,62 кв. м.
- Площадь помещений: 145,04 кв. м.
- Материал: бревно d=260мм
- Размеры дома: 13,4 м х 10,5 м
- Спальни: 4шт
- Второй свет: есть
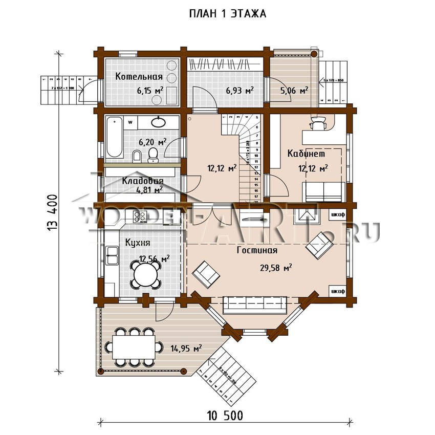
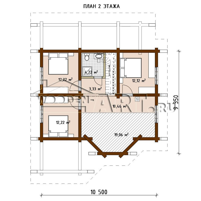
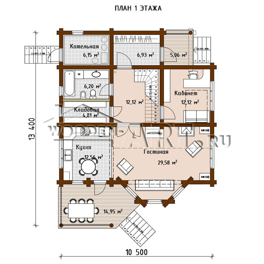
Проект деревянного дома из оцилиндрованного бревна является одним из наиболее популярных проектов. Заказчиком привлекает такая архитектура и планировка своей простотой и функциональностью. Центром планировочного решения в этом деревянном доме является гостиная с эркером и вторым светом. Балкон над гостиной сделан 1,5 м, чтоб можно было на нем разместить небольшие диванчики. Гостиная совмещена с кухней, из кухни спроектирован выход на террасу, что очень удобно. В доме три спальни и кабинет. Кабинет можно переделать в четвертую спальню. Рядом с кухней будущие хозяева этого дома сделали подсобку для хранения продуктов. Помещения, в которых требуется прокладка инженерных коммуникаций, размещены максимально близко друг к другу. Котельная отвечает нормам, которые необходимы при магистральном газе.
Конструктив этого деревянного дома немного усложнен эркером. Косоугольные чашки не самый простой элемент в домах из оцилиндрованного бревна. И размещение стен под углом подразумевает сужение окон. остекление в эркере можно сделать с размещением столбов между окнами, а не перерубов, тогда остекление будет максимальным. Крыша в этом деревянном доме двускатная, отлично работает при усадке дома. В фундаменте Заказчик предусмотрел лазы для обслуживания коммуникаций.
Если этот проект деревянного дома выполнить в клееном брусу или профилированном брусе, он будет смотреться ни чуть не хуже, чем из бревна. Можно также внести в этот проект абсолютно любые пожелания и корректировки.












