Главная
Проекты
Деревянные дома до 200 кв. м.
Деревянные дома от 200 до 250 кв. м.
Деревянные дома от 250 до 350 кв. м.
Деревянные дома от 350 кв. м.
Деревянные бани
Фотогалерея
Фотогалерея
Стоимость
Обо мне
Контакты
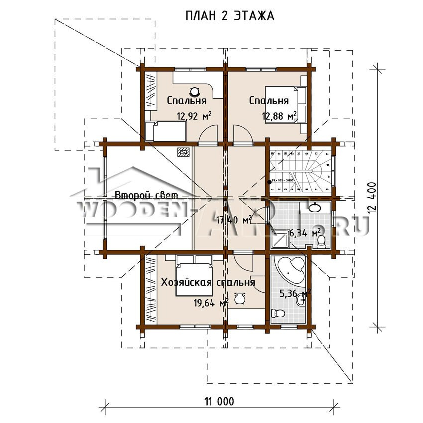
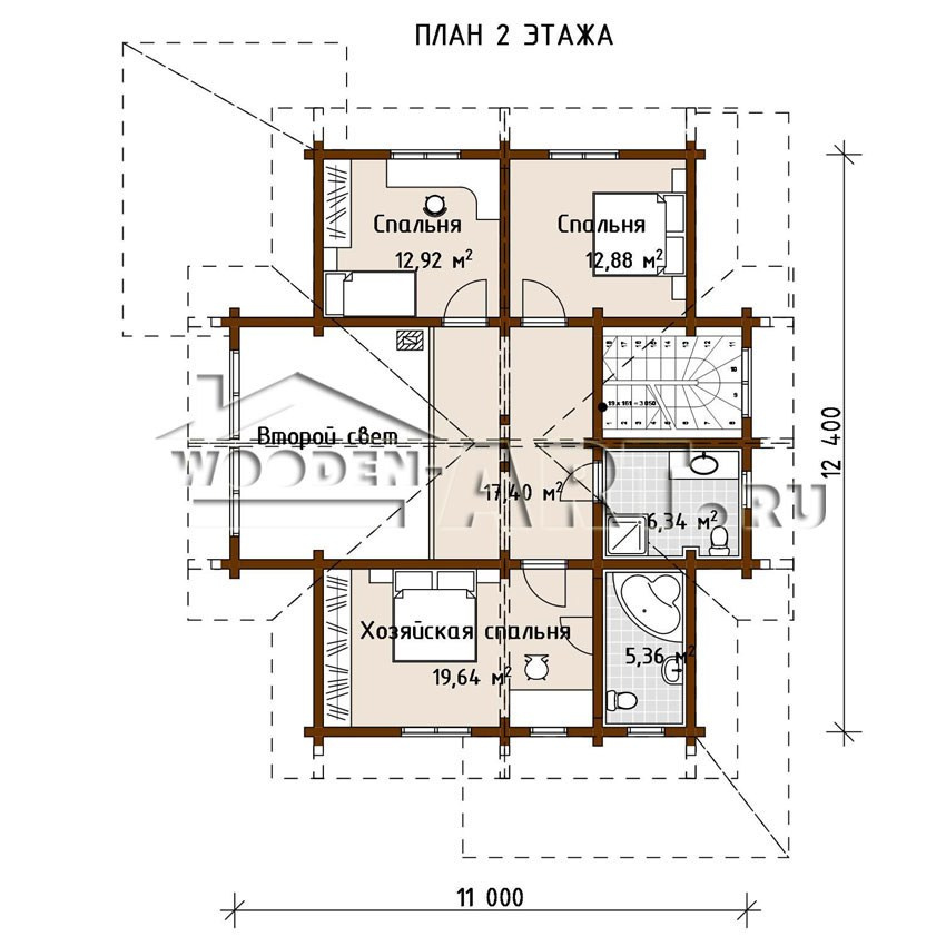
«Звенигород» 260 кв. м.
Расчетная площадь: 260,11кв.м.
Площадь помещений: 184,15 кв. м.
Материал: клееный брус
Размеры дома: 15,7 м х 12,5 м
Спальни: 4шт
Второй свет: есть