

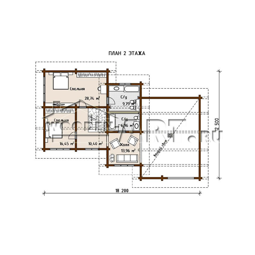
- Расчетная площадь: 364,55кв.м.
- Площадь помещений: 240,23 кв. м.
- Материал: клееный брус
- Размеры дома: 12,5 м х 23,8 м
- Спальни: 4шт
- Второй свет: есть
Современный деревянный дом из клееного бруса. Дом с просторной гостиной, совмещенной с кухней, и имеющей второй свет. Большое остекление в гостиной добавляет ощущение простора и добавляет в интерьер свою стилистику. Цветовая гамма экстерьера деревянного дома хорошо смотрится при комбинировании цветов. Односкатная кровля придает дому свой стиль. Односкатная кровля хорошо работает при усадке деревянного дома, изменяя свой угол наклона. Монтируется стропильная система на скользящие элементы, которые не препятствуют скольжению стропил при усадке. Для стропильной системы лучше применить клееные балки.












