

- Расчётная площадь: 279,18 кв. м.
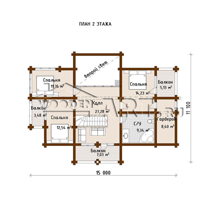
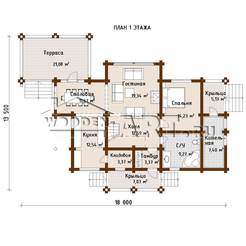
- Площадь помещений: 173,33 кв. м.
- Размеры дома: 13,5 м х 18,0 м
- Материал: клееный брус
- Спальни — 4шт
- Кухня-гостиная — 31,01 кв.м
Проект деревянного дома из клееного бруса первоначально был спроектирован из оцилиндрованного бревна в те года, когда клееный брус еще не использовался так широко, как сейчас. Заказчику понравился необычный стиль дома и проект был изменен под пожелания Заказчика и с изменением материала строительства дома. В клееном брусе дом выглядит современно и стильно. Проект деревянного дома имеет непростой конструктив, который легко решается применением клееного бруса в качестве стенового материала.
Первоначальное проектирование: 2008 г.
Внесение изменений в проект: 2014 г.



