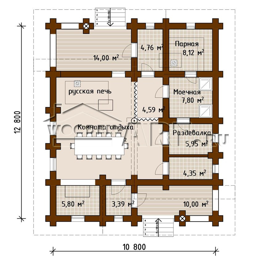
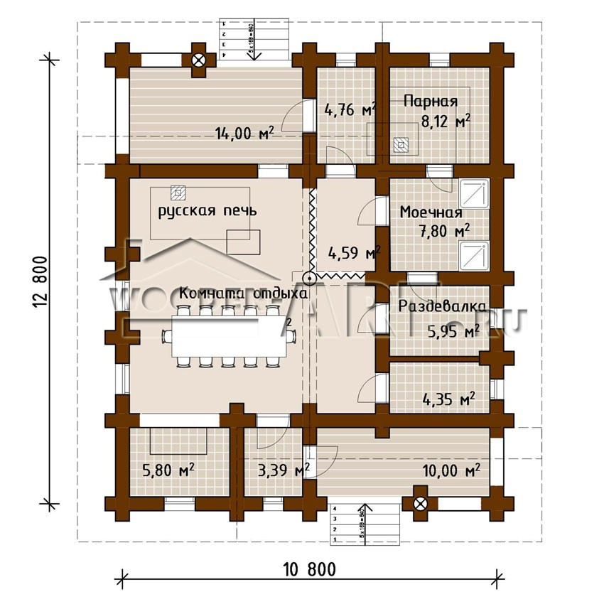
«Кедр» 138 кв. м.

«Кедр» 138 кв. м. Проекты деревянных домов


Проектирование: 2006 г.
Строительство: 2007–2008 г.


Проект деревянной бани из бревна ручной рубки. Из кедра.