Главная
Проекты
Деревянные дома до 200 кв. м.
Деревянные дома от 200 до 250 кв. м.
Деревянные дома от 250 до 350 кв. м.
Деревянные дома от 350 кв. м.
Деревянные бани
Фотогалерея
Фотогалерея
Стоимость
Обо мне
Контакты
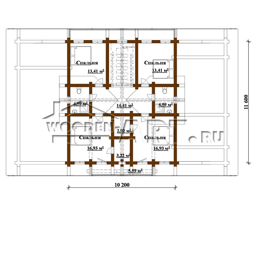
«Иваново» 369 кв. м.
Расчётная площадь: 369,5 кв. м.
Общая площадь: 277,88 кв. м.
Площадь помещений: 276,48 кв. м.
Материал: оцилиндрованное бревно
Размеры дома: 12,8 м х 19,8 м
Высота 1 этажа (до усадки): 3,0 м
Кухня-гостиная: 61,68кв.м.
Спальни: 6шт
Второй свет: есть